House Tent
  • 2a studio Haus Tent
  • House Tent

    Conversion and renovation of a residential and commercial building in Vaals (NL)

    built 1845

    in progress

House Maria
  • 2a studio Haus Maria Garten
  • 2a studio Haus Maria Eingang
  • 2a studio Haus Maria Treppenhaus
  • 2a studio Haus Maria Esszimmer
  • 2a studio Haus Maria Treppenhaus 2
  • 2a studio Ringstrasse Wohnen Bestand 02
  • 2a studio Haus Maria Wohnzimmer
  • 2a studio Haus Maria Wohnen Küche Baustand
  • 2a studio Haus Maria Wohnen Küche
  • 2a studio Haus Maria Küche
  • 2a studio Haus Maria Zimmer
  • 2a studio Haus Maria Ansicht historisch
  • House Maria

    Conversion and renovation of a townhouse

    built 1926

    converted and renovated 2023

Swimmingpool
  • 2a studio Schwimmbad Augustin Wohnen Schlafen
  • 2a studio Schwimmbad Augustin Ansicht
  • 2a studio Schwimmbad Augustin Grundriss 01
  • 2a studio Schwimmbad Augustin Grundriss 02
  • 2a studio Schwimmbad Augustin Grundriss 03
  • 2a studio Schwimmbad Augustin Baustelle
  • Swimmingpool

    Conversion and renovation of a private swimmingpool into flexible housing

    Phase 1-5. built

     

    in collaboration with Michel Kleinbrahm

Townhouse Köln Holweide I
  • 2a studio Stadthaus Holweide I AN Nord
  • 2a studio Stadthaus Holweide Persp EG
  • 2a studio Stadthaus Holweide Axo
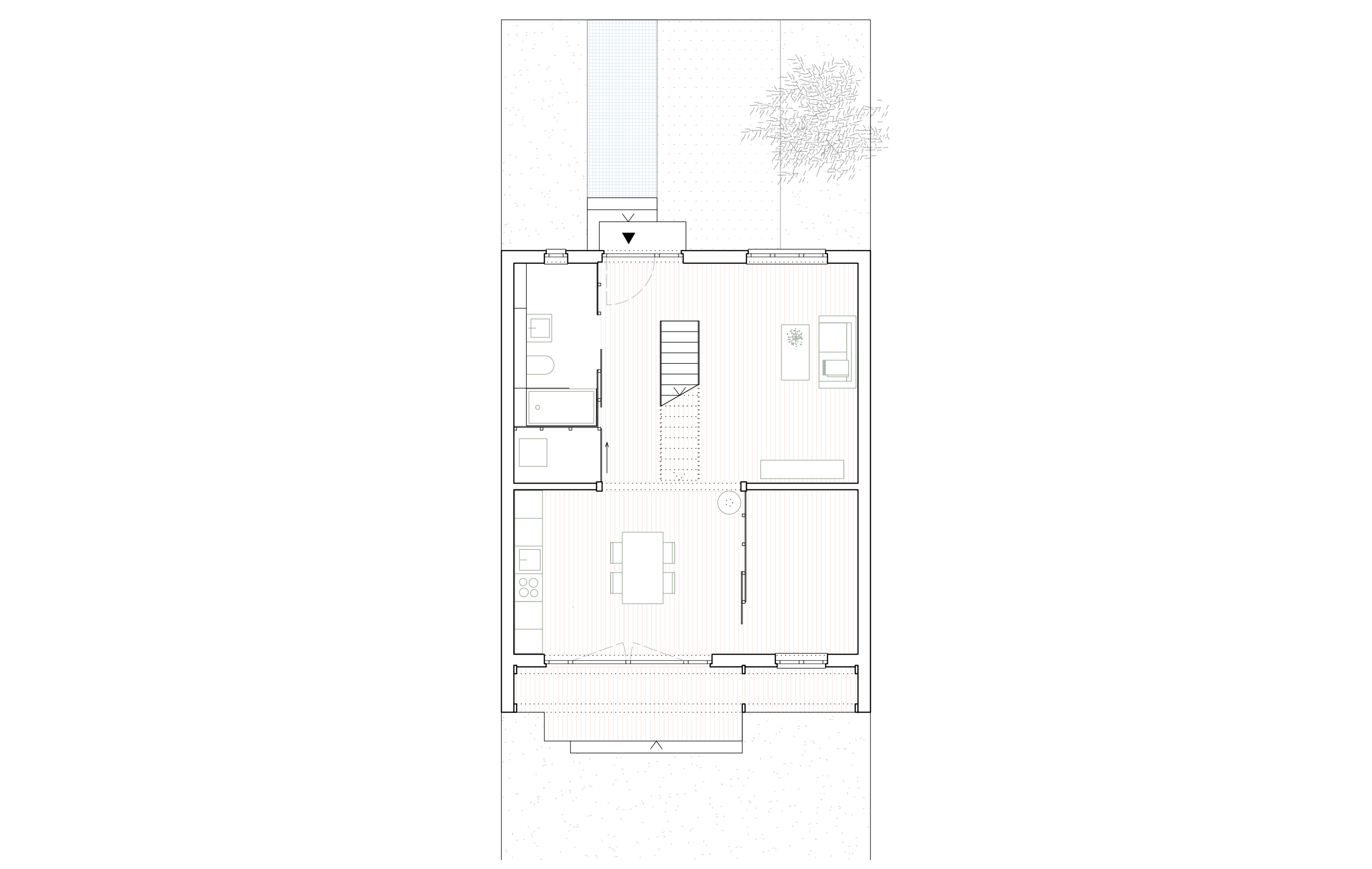
  • 2a studio Stadthaus Holweide I GR EG
  • 2a studio Stadthaus Holweide I GR OG
  • 2a studio Stadthaus Holweide I GR SG
  • 2a studio Stadthaus Holweide I AN Sued
  • Townhouse Köln Holweide I

    new construction of a residential building

    wooden construction with hemp lime

    finished

Siedlung Pütten
  • 2a studio Tossens Umgebung
  • 2a studio Tossens Typ I
  • 2a studio Tossens Umgebung 2
  • 2a studio Tossens Typ II
  • 2a studio Tossens Typ IV
  • Siedlung Pütten

    Housing typologies, Tossens

    finished

Blauw uur I Blue hour
  • 2a studio Noordwijk Ausblick Meer
  • 2a studio Noordwijk Grundriss
  • 2a studio Noordwijk Baustelle
  • 2a studio Noordwijk Detail
  • 2a studio Noordwijk Ausblick
  • Blauw uur I Blue hour

    Apartment redesign, Noordwijk aan Zee (NL)

    built

Maison Mougins
  • 2a studio Mougins Perspektive Aussen
  • 2a studio Mougins Dachaufsicht
  • 2a studio Mougins Grundriss
  • 2a studio Mougins Garten
  • 2a studio Mougins Ausblick mit Pool
  • Maison Mougins

    Hillside House, Mougins (F) 

    competition 1st prize

    built

Desktop
  • 2a studio Desktop Ecke
  • 2a studio Desktop Unterschrank
  • Desktop

    Interior design, Cologne

    built